史密斯住宅|美国当代建筑中的“阳春白雪”
史密斯住宅|美国当代建筑中的“阳春白雪”

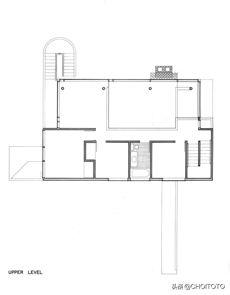
史密斯住宅(Smith House)是白色派作品中具有代表性的一个,其设计者是美国建筑设计师理查德迈耶(Richard Meier)。

设计师迈耶的建筑作品具有一种超凡脱俗的气派,明显的非天然效果,且以白色为主,迈耶也是白色派的代表人物之一,其作品更是被美称为美国当代建筑中的“阳春白雪”。

史密斯住宅(Smith House)位于美国康涅狄格州的达瑞安海滨。

这里是卡罗尔·史密斯(Carole Smith)与其丈夫在康涅狄格州海岸线上的周末度假屋。

多岩石的土地,茂密的常青树,海岸露头,一个引人注目的斜坡,一个小沙湾,建筑与自然持续对话。

史密斯住宅周围长满了高耸、翠绿的树丛,清澈的水,澄蓝的天,相为呼应。

这里远离市中心,堪称一方世外桃源。

不乏“若无闲事挂心头,便是人间好时节”的氛围。

1968年9月刊的《美丽家居》(House Beautiful )杂志更是把这栋房子描述为一个“岸边的灯塔”。

在迈耶的作品中,每一个部分每一个角落都是经过了深思熟虑的,每一个细节都经过精心设计。

每一处的设置都有它存在的意义。





















-
- 富贵竹黄叶怎么办?三大解决“技巧”,快学起来
-
2025-11-06 04:27:06
-
- 充电速度最快的10款手机,240W功率,最快仅需9分钟充满
-
2025-11-06 04:24:50
-
- 128岁老人带75件证物自首,自称希特勒,躲藏多年不想躲了
-
2025-11-06 04:22:34
-
- 微信又出新骗局?已有多人上当,千万提高警惕!
-
2025-11-06 04:20:19
-
- 是教育圣地,还是变相监狱?揭秘衡水中学停课事件背后的真相
-
2025-11-06 04:18:03
-
- 请查收!武汉交警公布实时路况
-
2025-11-06 04:15:47
-
- 噩梦一天三包槟榔!26岁小伙变割脸人,揭开槟榔的恐怖威力!
-
2025-11-06 04:13:31
-
- 《极限挑战》最新期遭意外,嘉宾坐18个小时火车,网友:刺激啊
-
2025-11-06 04:11:16
-
- 中国开国上将完整名单
-
2025-11-06 04:09:00
-
- 一根筷子引发的思考:医疗与社会现象的深度剖析
-
2025-11-06 04:06:44
-
- 斗鱼女主播安雅Sylvia,直播解扣网友瞬间炸了
-
2025-11-06 04:04:29
-
- 东北出马仙的故事
-
2025-11-06 04:02:13
-
- 车站“撕钱角”骗局,骗了很多农民工,别被套路了,快来揭秘骗局
-
2025-11-06 03:59:57
-
- 3个故事看伍子胥,过于刚厉耿直注定惨死收场!看看你知道几个?
-
2025-11-06 03:57:41
-
- 中国主要铁路干线
-
2025-11-06 03:55:26
-
- 小熊直播间爆棚!3千人共听往事,直言老杜的待遇她无所谓!
-
2025-11-06 03:53:10
-
- 世界上七个抵达月球的国家 美国只是其中之一 印度两次发射后均失联
-
2025-11-05 23:02:25
-
- 如果让八路军守卫南京结局会怎么样
-
2025-11-05 03:58:43
-
- 全球最好吃的 9 种杯面
-
2025-11-05 03:56:27
-
- “色桃”章小蕙(108将-第18员)
-
2025-11-05 03:54:11



女生对你透露感情史是什么意思?该怎么应对
高晓松新作《越过山丘》歌词解读
4本都市YY种马文,萝莉控御姐控应有尽有,每一本后宫至少30起步
《古惑仔》洪兴14位老大,你最多记得10个,后面4个你一定不记得
呼兰大侠就是杨中山呼兰大侠案真实情况
俞敏洪妻子照片(俞敏洪的婚史)
收音机十大名牌(收音机十大名牌第一名是谁)
3本妖艳女主撩清冷禁欲男主文:《欢喜债》撩人小妖精x高冷禁欲男
20款棒针编织帽子,非常好看又实用,织女们收藏!附10款图样
作者 - 蟹总作品集,偏现实向,多糙汉